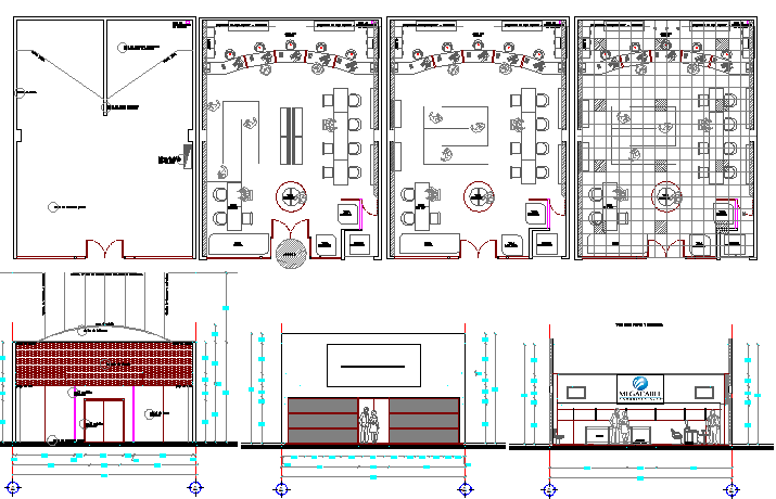
Draft local commercial complex architecture details dwg file
Description
Draft local commercial complex architecture details dwg file.
Draft local commercial complex architecture details that includes a detailed view of main elevation view, front and back sectional view, doors and windows view, layout plan with main entry gate, reception area, waiting area, seating area, general hall, passage, offices, sanitary facility, people blocks, dining area, conference hall, meeting room, dining area and much more of complex project.
Uploaded by:

