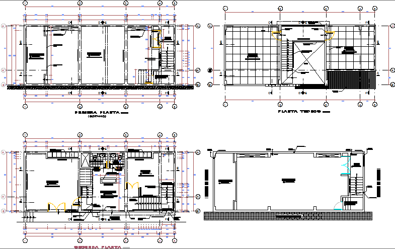
All floors floor plan layout details of community building dwg file
Description
All floors floor plan layout details of community building dwg file.
All floors floor plan layout details of community building that includes a detailed view of ground floor, first floor etc with main entry and exit gate, waiting area, reception area, front desk, employee desk, corporate offices, general hall, passages, dining area and much more of building layout plan.
Uploaded by:

