Multi-story local market elevation and sectional details dwg file
Description
Multi-story local market elevation and sectional details dwg file.
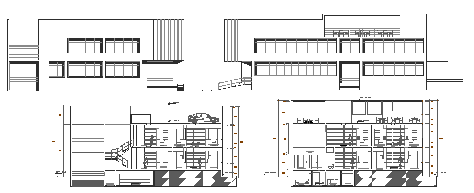
Multi-story local market elevation and sectional details that includes a detailed view of front and back elevation, front and back section, flooring view, doors and windows view, outdoor and indoor staircase, wall design, car parking view, shops and showrooms and much more of market project.
Uploaded by:

