Office building structure details with construction dwg file
Description
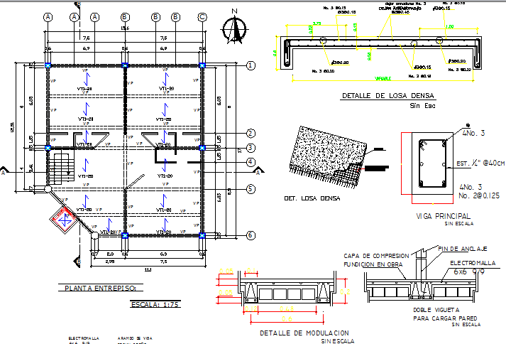
Office building structure details with construction dwg file.
Office building structure details with construction that includes a detailed view of general layout plan details, beam construction details, dimensions, measures, floor construction and much more of office building project.
Uploaded by:

