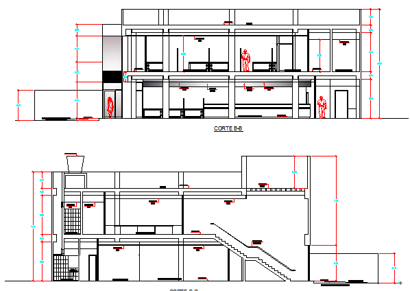
Bank agency front and back sectional details dwg file
Description
Bank agency front and back sectional details dwg file.
Bank agency front and back sectional details that includes a detailed view of flooring view, wall sections, doors and windows, staircase view, wall design, dimensions and much more of bank section.
Uploaded by:
