Hydraulic view with low and high floor plan of house dwg file
Description
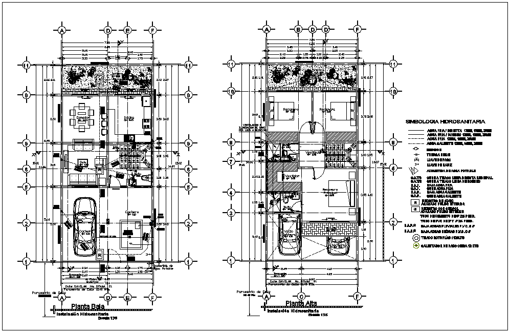
Hydraulic view with low and high floor plan of house dwg file in low plan with view of area distribution
and wall view with area of house and single water line view with washing area and high floor plan
with view of floor plan with washing area and single water line view with legend view of hydraulic with
necessary dimension.
File Type:
DWG
File Size:
2.7 MB
Category::
Dwg Cad Blocks
Sub Category::
Autocad Plumbing Fixture Blocks
type:
Gold
Uploaded by:

