Electrical installation view in roof top plan of house with electrical legend dwg file
Description
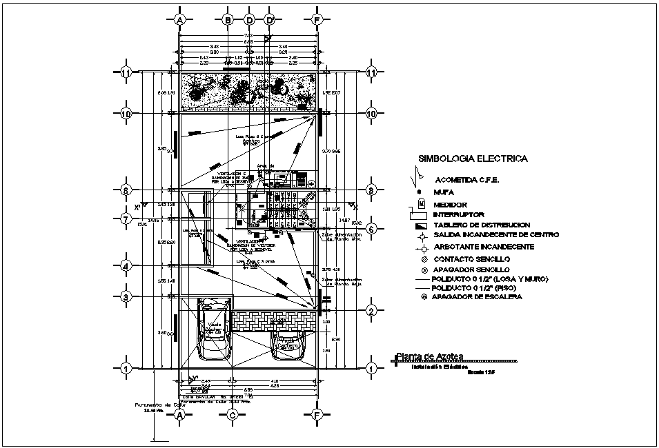
Electrical installation view in roof top plan of house with electrical legend dwg file in roof top plan with view of roof area with wall view and view of parking and garden area view with single electric line view with electric legend with necessary dimension.
Uploaded by:

