First floor plan with view of bungalows with architecture view dwg file
Description
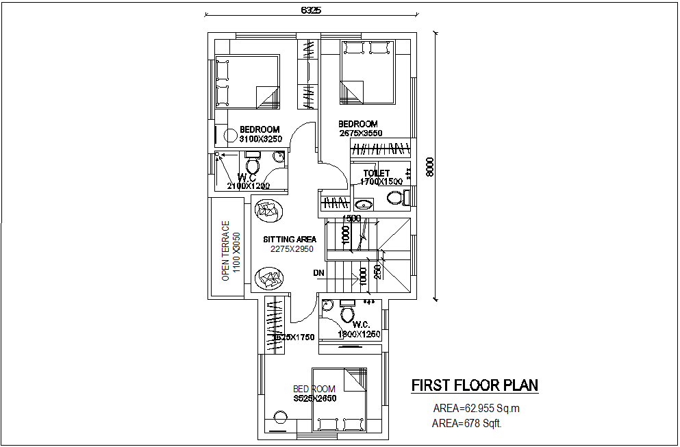
First floor plan with view of bungalows with architecture view dwg file in plan with distribution of area and view of wall view and view of bedroom,sitting area,water closet,sitting area and view of door position with area view with necessary dimension.
Uploaded by:

