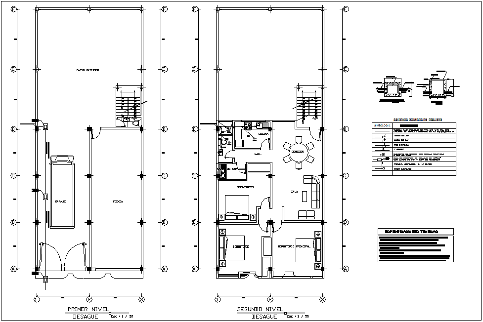
Drain water line view with sanitary view with house dwg file
Description
Drain water line view with sanitary view with house dwg file in floor plan with sanitary view with
washing area and view of single water line view and view of water line of drain view with necessary view with dimension.
Uploaded by:

