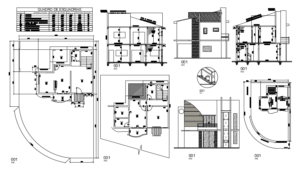
Plan,elevation and section view of residential area with architecture view dwg file
Description
Plan,elevation and section view of residential area with architecture view dwg file in plan with view of
wall with area distribution view and view of kitchen,room,hall,washing closet and door mounting position and elevation and section view with floor and floor level with important dimension.
Uploaded by:

