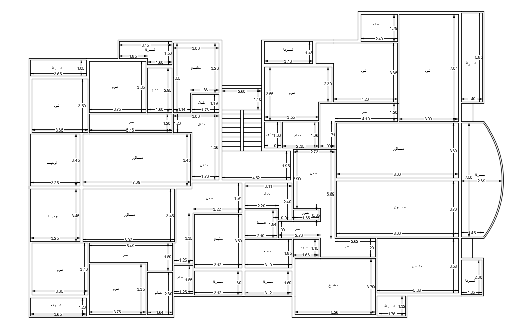
Building of commercial area plan with architecture view dwg file
Description
Building of commercial area plan with architecture view dwg file in plan with view of area distribution
with view of different part of building with detail view with necessary dimension.
Uploaded by:

