False ceiling floor plan dwg file
Description
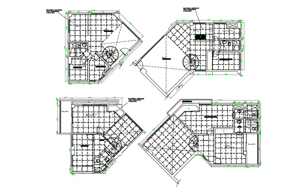
False ceiling floor plan dwg file in plan with view of area distribution with wall view with view of area view with view of kitchen,washing area and room view with view of wall and distribution of area with
door view and bedroom view and other floor plan view with necessary dimension in plan.
Uploaded by:
