LOGIN
HOME
CATEGORIES
UPLOAD FILE
PRICING
HOUSE PLAN
ABOUT US
CONTACT US
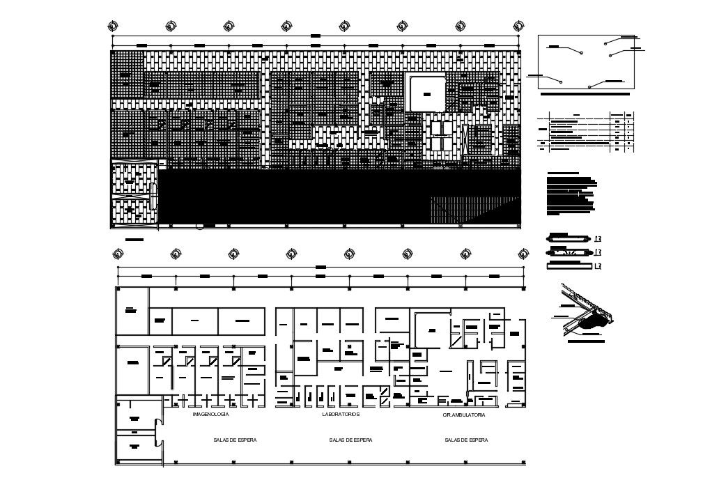
Hospital plan In CAD Blocks
Home
Categories
Details
Structural Steel Drawings
Hospital plan In CAD Blocks
Uploaded by:
Chirag
View Profile
View Profile
Description
Hospital plan which includes the reception area, surgery room, classification and distribution of samples, blood bank, laboratories, waiting room and much more details.
File Type:
DWG
File Size:
7.9 MB
Category::
Details
Sub Category::
Structural Steel Drawings
type:
Gold
Uploaded by:
Chirag
View Profile
Download
Add to libary
find Latest
Related
Files