LOGIN
HOME
CATEGORIES
UPLOAD FILE
PRICING
HOUSE PLAN
ABOUT US
CONTACT US
Construction Section Plan Detail Free AutoCAD Drawings
Home
Categories
Details
Construction Details
Construction Section Plan Detail Free AutoCAD Drawings
Uploaded by:
Chirag
View Profile
View Profile
Description
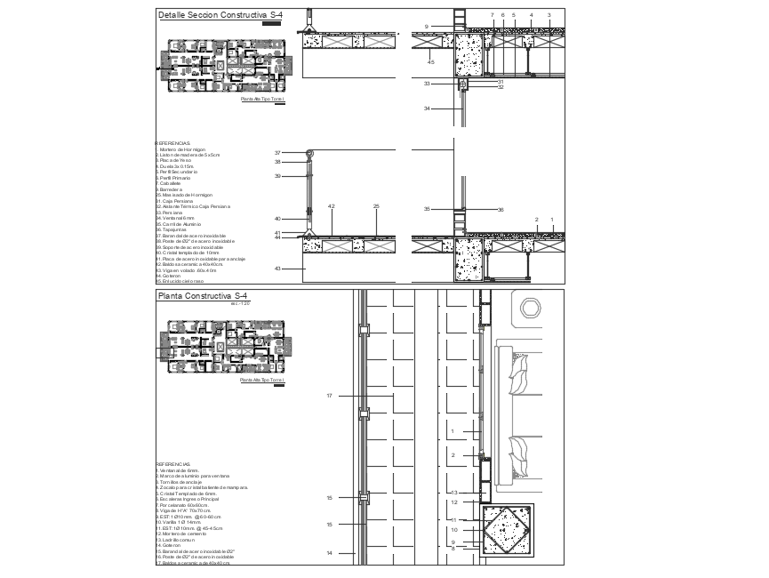
Construction Section Plan with detail which includes Balcony view of ceiling area, stirs, window, glasses, Concrete detail, plasterboard, beam detail, etc.
File Type:
DWG
File Size:
926 KB
Category::
Details
Sub Category::
Construction Details
type:
Free
Uploaded by:
Chirag
View Profile
Download
Add to libary
find Latest
Related
Files