Commercial premises different elevation view dwg file
Description
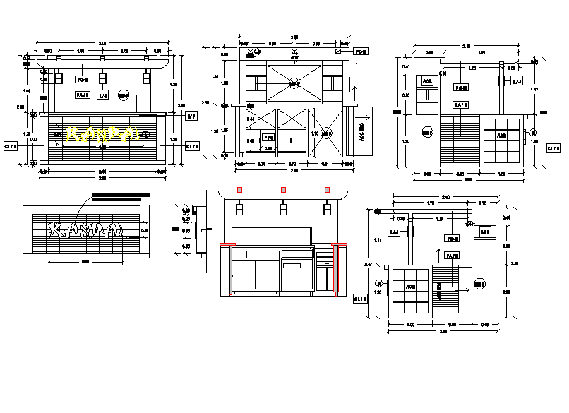
Commercial premises different elevation view dwg file in elevation with different commercial elevation with view of wall and wall support view with view of floor with floor level view and view of commercial area view with necessary dimension.
Uploaded by:

