One family two story house with interior auto-cad details dwg file
Description
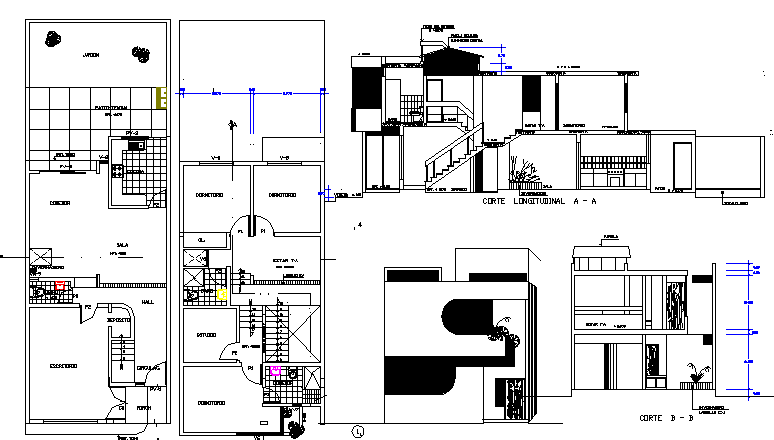
One family two story house with interior auto-cad details dwg file.
One family two story house with interior auto-cad details that includes a detailed view of all sided elevations, all sided sections, flooring view, doors and windows view, staircase view, floor plan view, main entry door, family hall, living area, kitchen, dining area, bedroom, master bedroom, toilets and bathroom, laundry are, balcony, terrace and much more of house project.
Uploaded by:

