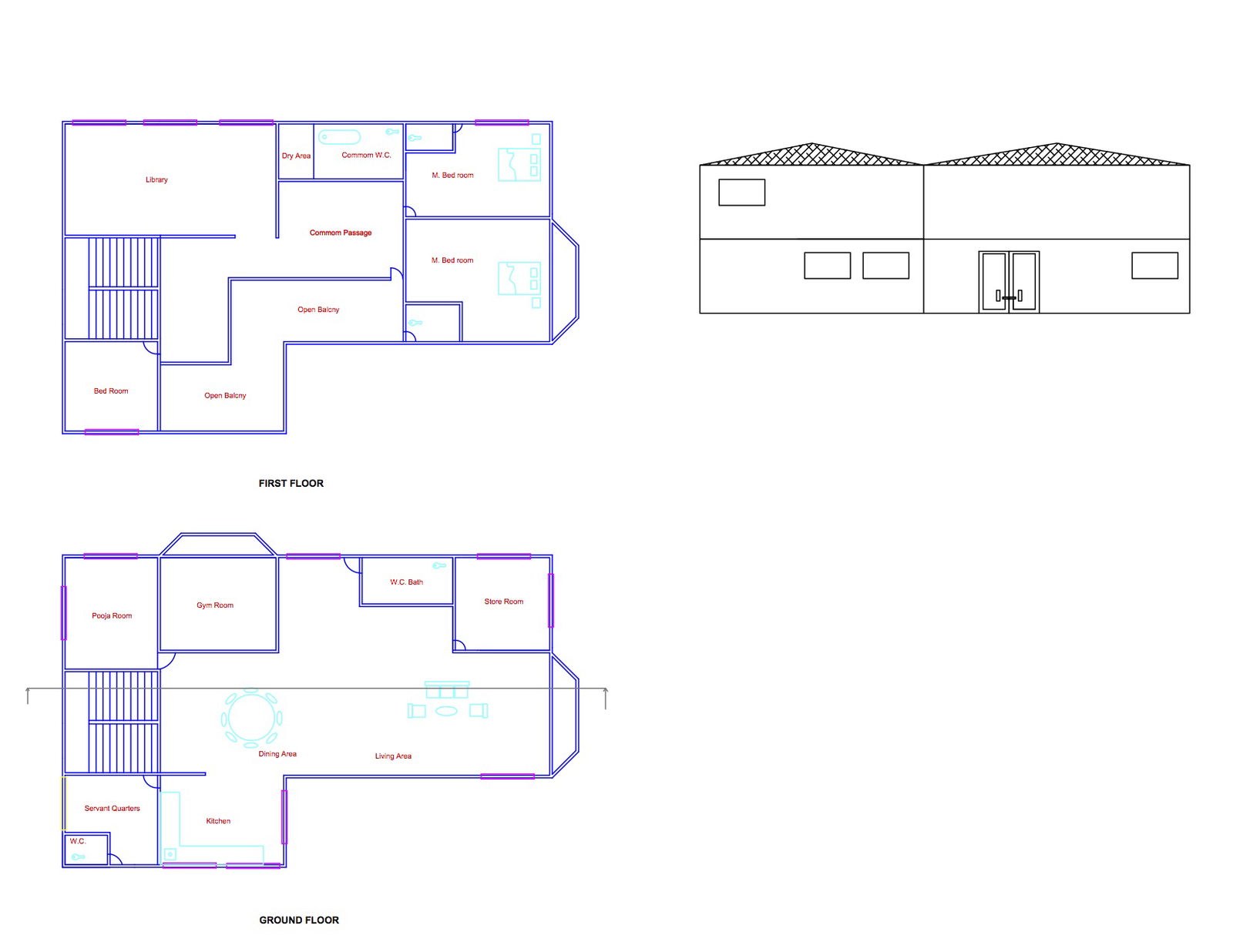
bBungalow plan
Description
This plan is G+2 storey attractive bungalow plan with all amenities in it like gym khan, library and all other things.
It has been designed with the residential purpose and may be useful for all the viewers.
Kindly drop your comment and appreciate my hardworking behind it
Uploaded by:

