2D house design
Description
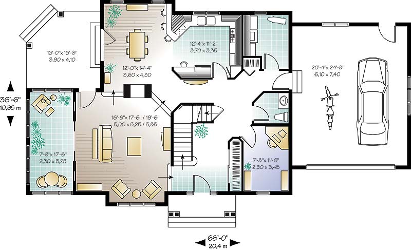
this is 2d design beautiful house on one bed room one bath room one dramda om garag on drawing hall and best part is this is cheap
File Type:
File Size:
53 KB
Category::
Projects
Sub Category::
Architecture House Projects Drawings
type:
Gold

Uploaded by:
Wahaj
Attique

