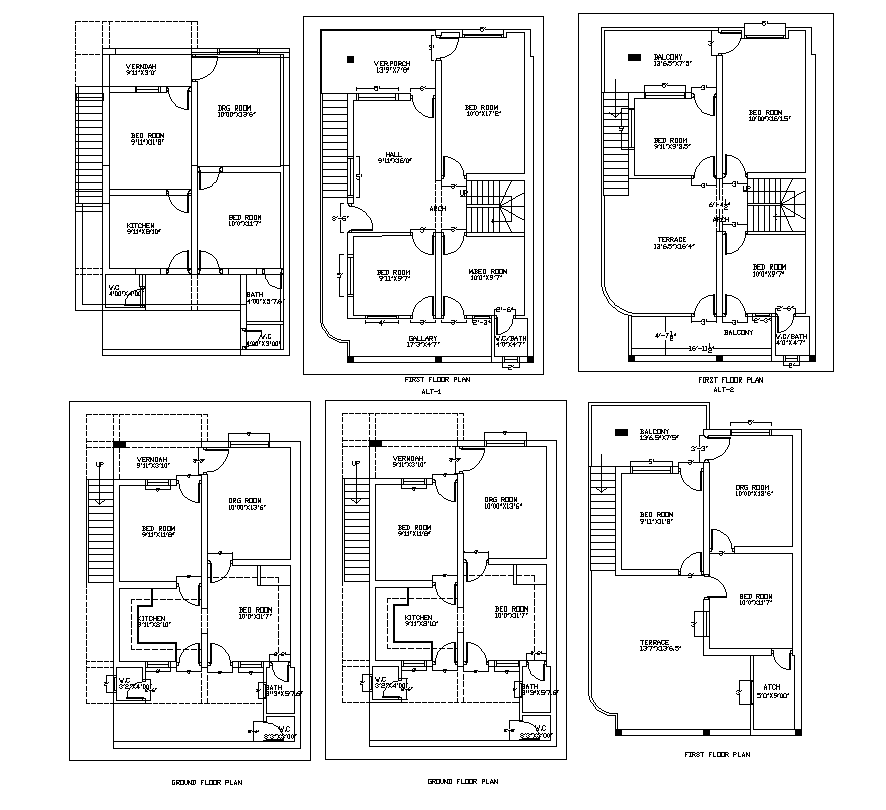
Residential apartment detail plan layout dwg file
Description
Residential apartment detail plan layout dwg file, wall detail, floor detail, wall detail, staircase detail, bedroom detail, ground floor detail, first-floor detail, balcony detail, hidden line detail, room diemsnion detail, toilet and bathroom detail, terrace detail, door and window detail, vent detail, etc.

Uploaded by:
Eiz
Luna
