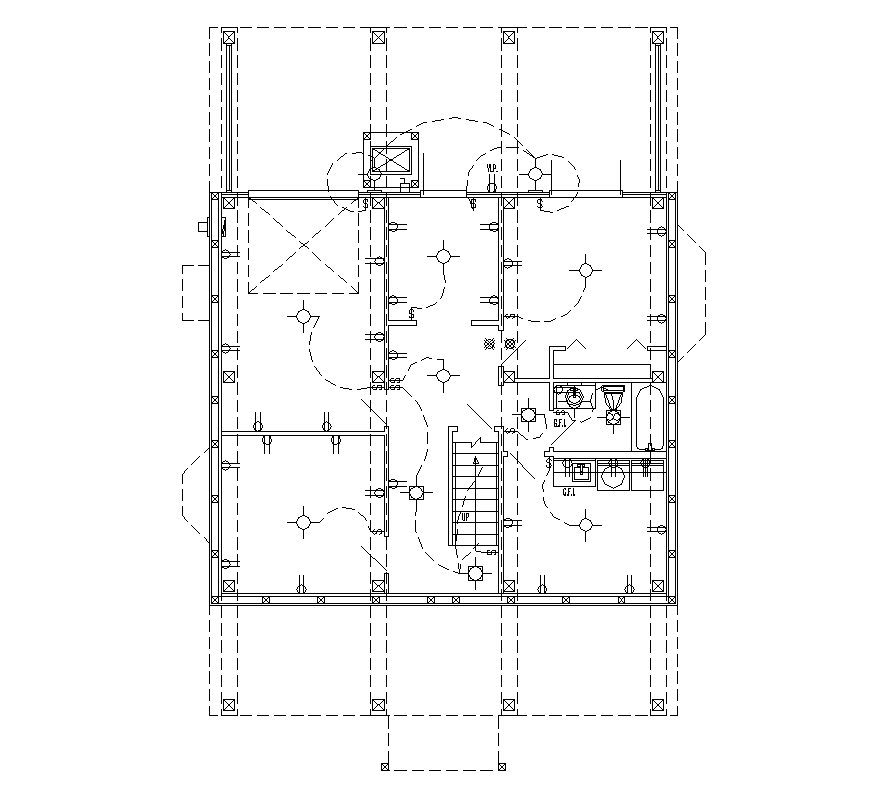
Electrical installation layout plan
Description
Electrical installation layout plan, plan view detail, electric wire detail, wall detail, flooring detail, plug and switch detail, staircase detail, room detail, cut out detail, toilet and bathroom detail, projection detail, hidden line detail, etc.

Uploaded by:
Eiz
Luna

