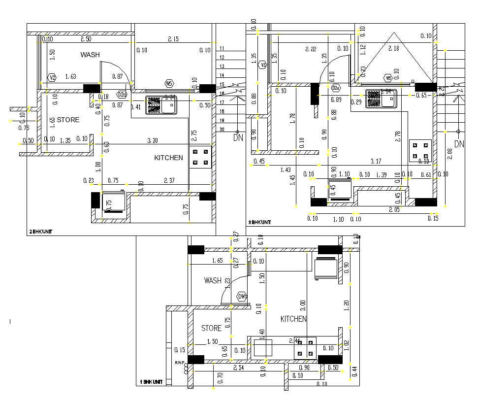
Different building structure detail layout plan
Description
Different building structure detail layout plan, plan view detail, hatching detail, wall detail, flooring detail, staircase detail, cut out detail, dimension detail, room detail, toilet and bathroom detail, kitchen detail, room detail, room dimension detail, etc.

Uploaded by:
Eiz
Luna

