Restaurant building CAD structure detail layout plan
Description
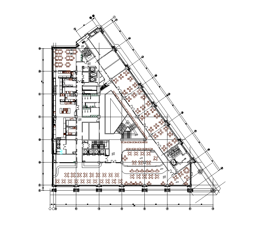
Restaurant building CAD structure detail layout plan, wall detail, hidden line detail, furniture detail, flooring detail, numbering detail, door and window detail, staircase detail, table and chair detail, floor level detail, toilet detail, plan view detail, etc.

Uploaded by:
Eiz
Luna
