Restaurant building detail plan layout dwg file
Description
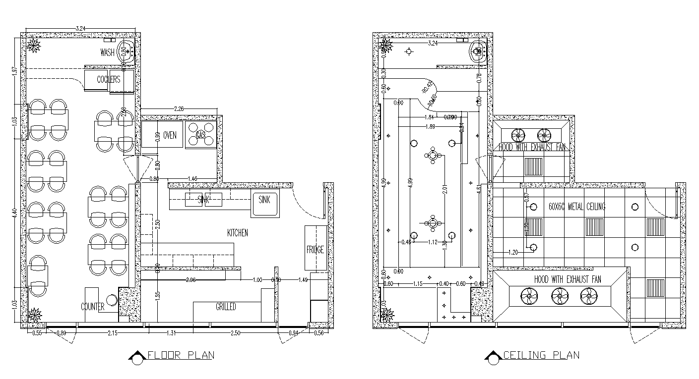
Restaurant building detail plan layout dwg file, floor plan detail, hidden line detail, ceiling plan detail, hatching detail, cut out detail, wall detail, landscaping plants detail, concrete masonry detail, exhaust fan detail, POP detail, table and chair detail, dimension detail, kitchen detail, etc.

Uploaded by:
Eiz
Luna

