Detail water tank structure 2d view layout autocad file
Description
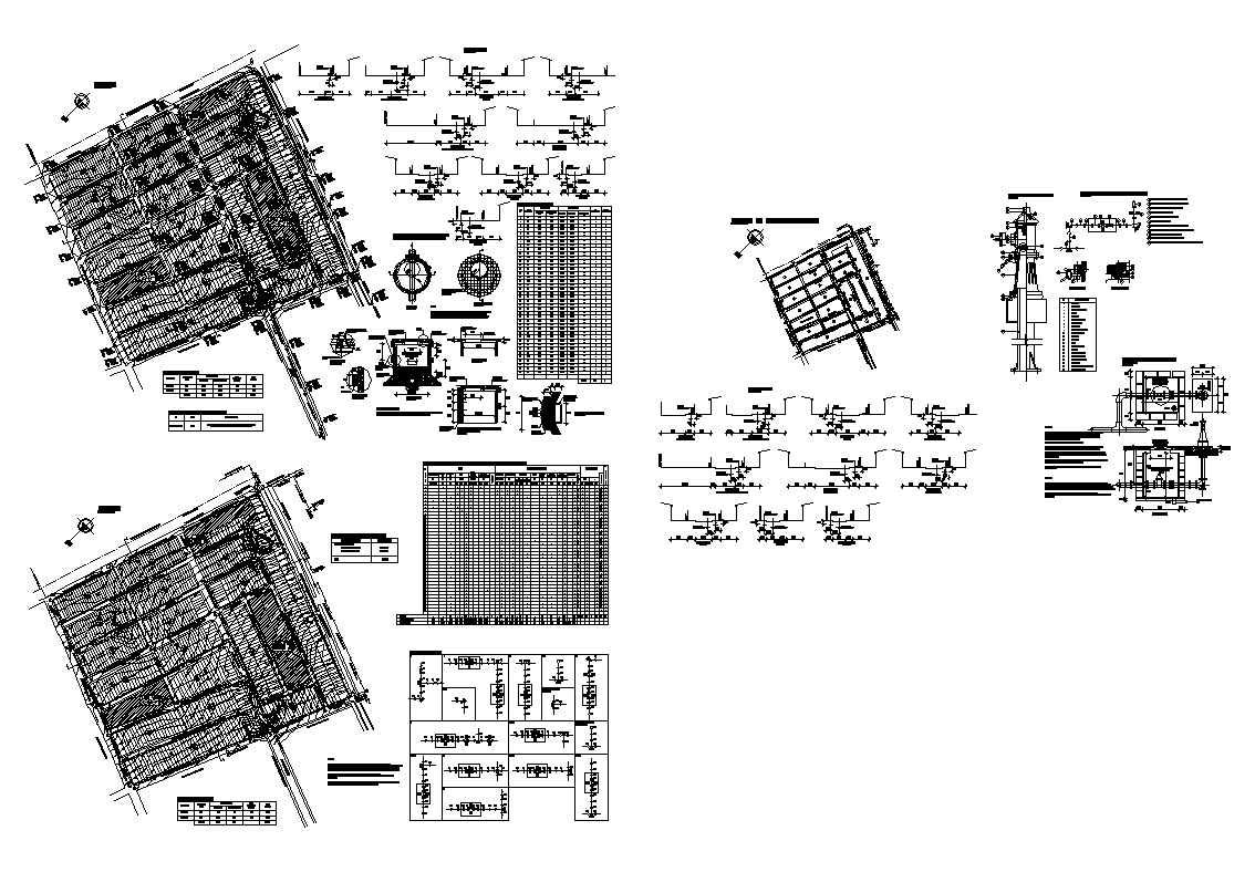
Detail water tank structure 2d view layout autocad file, plan view detail, hidden line detail, specification detail, legend detail, numbering detail, reinforcement detail in tension and compression zone, dimension detail, hatching detail, north direction detail, etc.

Uploaded by:
Eiz
Luna

