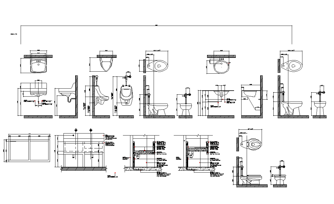
Different sanitary block detail elevation 2d view layout file
Description
Different sanitary block detail elevation 2d view layout file, english toilet detail, top elevation detail, dimension detail, wall detail, hatching detail, front elevation detail, plumbing pipe detail, naming detail, concrete masonry detail, cut out detail, etc.

Uploaded by:
Eiz
Luna

