Residential building working plan detail 2d view layout file
Description
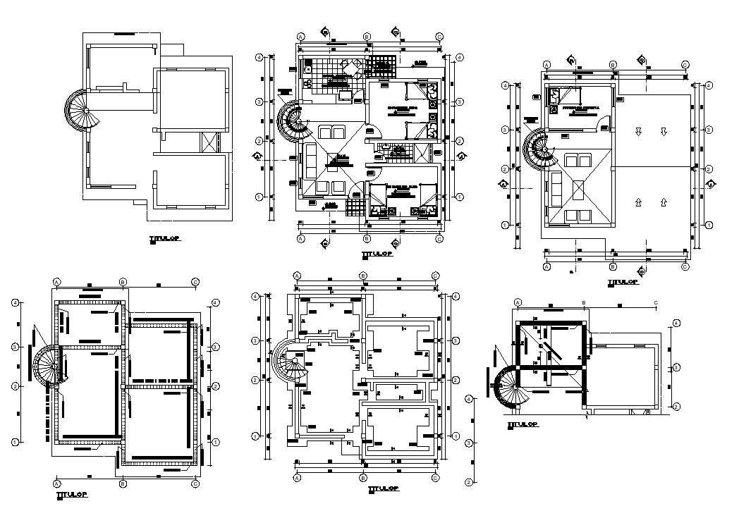
Residential building working plan detail 2d view layout file, plan view detail, wall detail, flooring detail, furniture detail, circular stair detail, railing detail, floor level detail, line plan detail, numbering detail, hidden line detail, door and window detail, living room detail, bedroom detail, sanitary toilet and bathroom detail, section line detail, etc.

Uploaded by:
Eiz
Luna

