Residential building earthing wire connection detail layout plan
Description
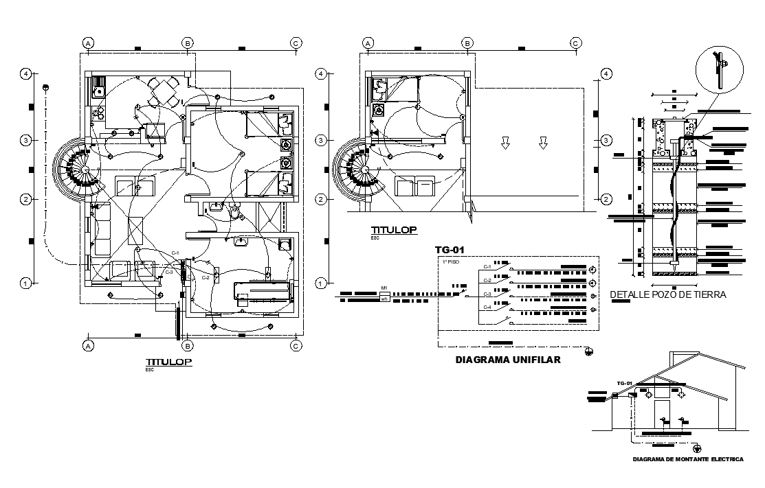
Residential building earthing wire connection detail layout plan, plan view detail, wall detail, floor detail, circular staircase detail, specification detail, floor level detail, furniture detail, plug and switch detail, circuit detail, living room and bedroom detail, numbering detail, cut out detail, sanitary bathroom and toilet detail, dimension detail, etc.

Uploaded by:
Eiz
Luna

