Train structure CAD machinery 2d view layout file
Description
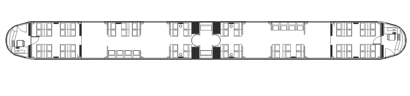
Train structure CAD machinery 2d view layout file, Steel body structure detail, top elevation detail, seat arrangement detail, door and window detail, engine block detail, line drawing detail, not to scale drawing detail, etc.

Uploaded by:
Eiz
Luna

