2d view of Apartment building detail plan layout dwg file
Description
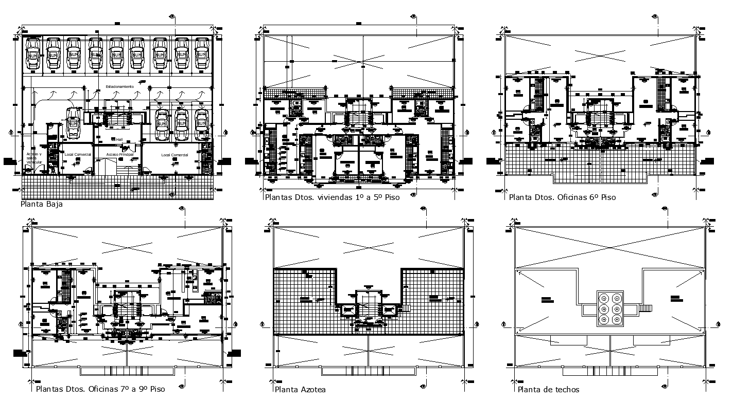
2d view of Apartment building detail plan layout dwg file, plan view detail, terrace detail, floor level detail, wall detail, furniture detail, dimension detail, parking place detail, door and window detail, vechicle detail, staircase detail, hidden line detail, flooring detail, hatching detail, section line detail, balcony detail, etc.

Uploaded by:
Eiz
Luna

