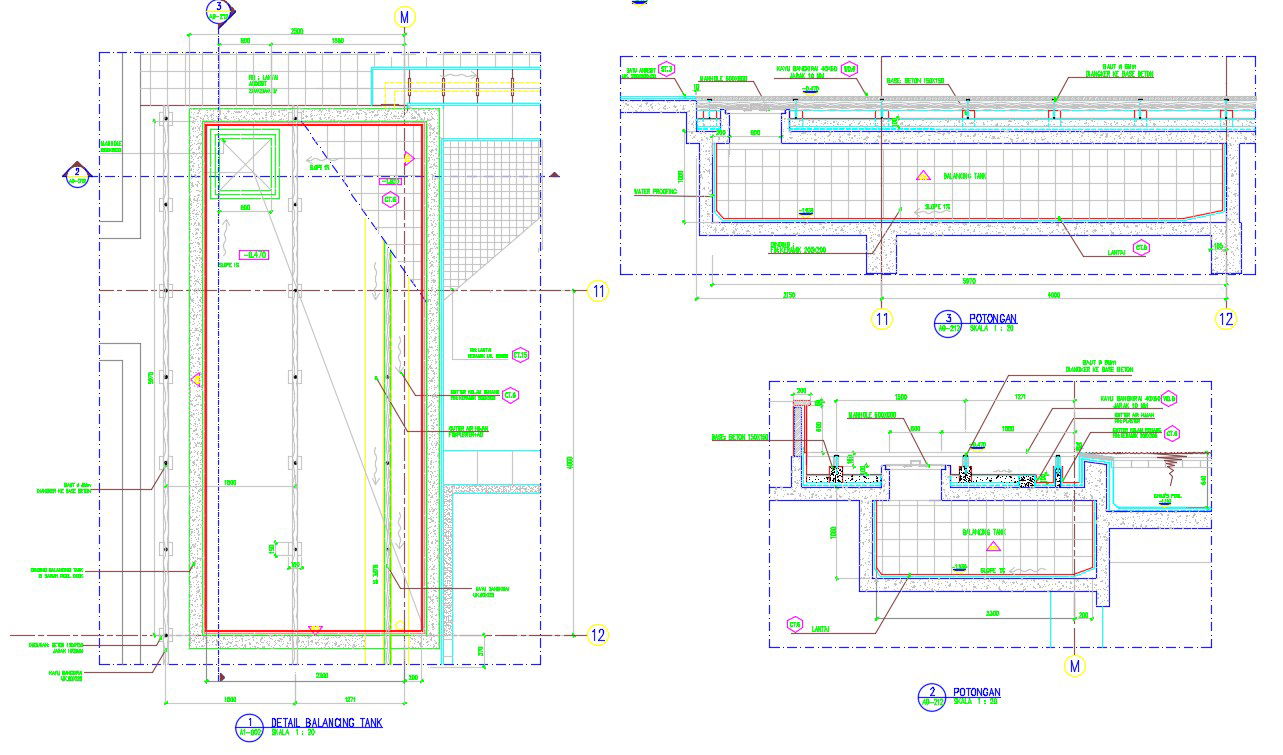
Detail balancing tank
Description
True to its name "balancing tank" which is a reservoir of water which is parallel to the pool that serves as a counterweight to the pool water. Balancing tanks used in swimming pools that use the system "overflow". Ter of water spilled from the pool because of rain or any activity dip into the balancing tank. If the pool water evaporation and the volume is reduced, the use of water in the balancing tank at input back into the pool. As much as possible the pool water will not be wasted unless it is balancing tank already full.
Uploaded by:
saiful
bahri

