Bungalow building CAD structure detail plan 2d view dwg file
Description
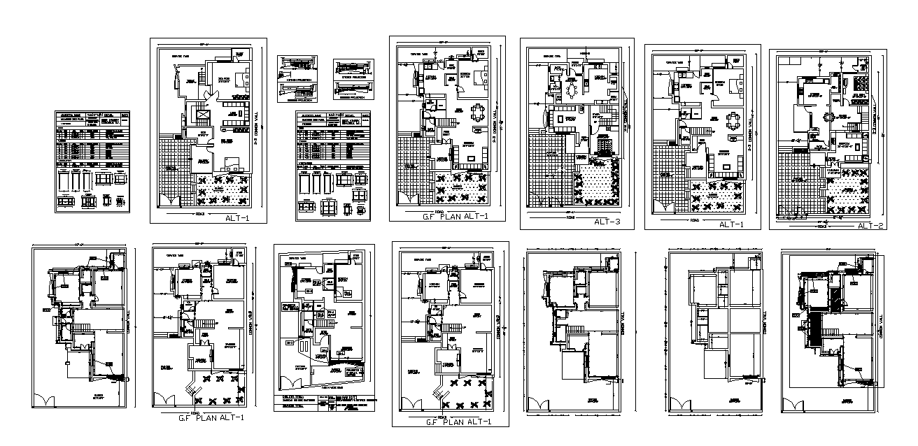
Bungalow building CAD structure detail plan 2d view dwg file, ground floor plan detail, floor level detail, wall detail, furniture detail, ground detail, landscaping plants detail, wall and flooring detail, door and window detail, specification detail, staircase detail, bedroom detail, living room detail, toilet and bathroom detail, dimension detail, bed detail, table and chair detail, vent detail, etc.

Uploaded by:
Eiz
Luna
