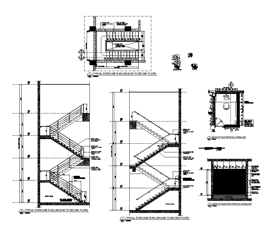
Typical staircase plan and elevation 2d view layout file
Description
Typical staircase plan and elevation 2d view layout file, railing detail, riser and thread detail, floor level detail, welded connection detail, dimension detail, front elevation detail, hatching detail, top elevation detail, specification detail, section line detail, RCC detail, etc.

Uploaded by:
Eiz
Luna

