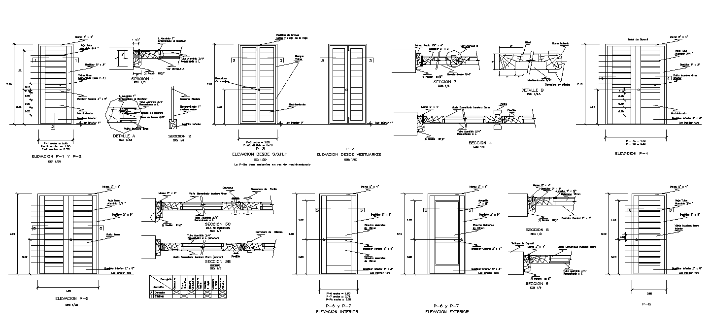
Door structure detail elevation and section 2d view layout dwg file
Description
Door structure detail elevation and section 2d view layout dwg file, front elevation detail, lintel detail, steel bracket detail, nut boolt required for joints and connection detail, wooden structure detail, section detail, scale 1:20 detail, door design detail, hathcing dteail, interior and exterior elevation detail, door handle detail, specification detail, etc.
File Type:
DWG
File Size:
211 KB
Category::
Dwg Cad Blocks
Sub Category::
Windows And Doors Dwg Blocks
type:
Gold

Uploaded by:
Eiz
Luna

