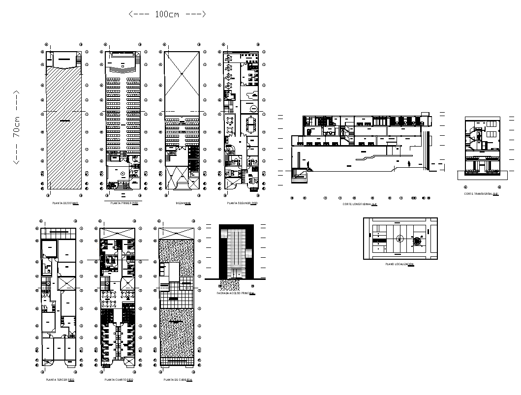
Hotel and restaurant detail section and plan view layout file
Description
Hotel and restaurant detail section and plan view layout file, wall detail, terrace plan detail, furniture detail, landscaping plants detail, door and window detail, room detail, floor level detail, section line detail, hatching detail, staircase detail, elevator detail, flooring detail, dimension detail, sanitary toilet detail, etc.

Uploaded by:
Eiz
Luna
