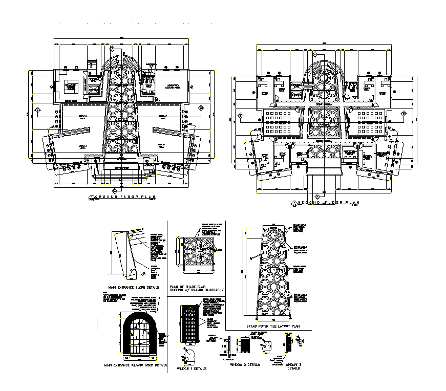
Islamic style museum detail elevation layout plan
Description
Islamic style museum detail elevation layout plan, plan view detail, dimension detail, door detail, line drawing detail, wall detail, window detail, slab shade detail, ground floor plan detail, floor level detail, scale detail, naming detail, hatching detail, etc.

Uploaded by:
Eiz
Luna

