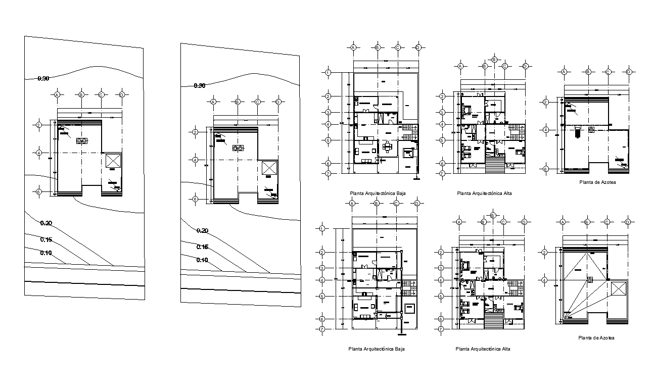
Site and construction plan of housing building structure detail autocad file
Description
Site and construction plan of housing building structure detail autocad file, site plan detail, wall and flooring detail, numbering detail, hidden line detail, furniture detail, door and window detail, plan view detail, bedroom detail, living room detail, dining room detail, sanitary toilet and bathroom detail, staircase detail, floor level detail, etc.

Uploaded by:
Eiz
Luna

