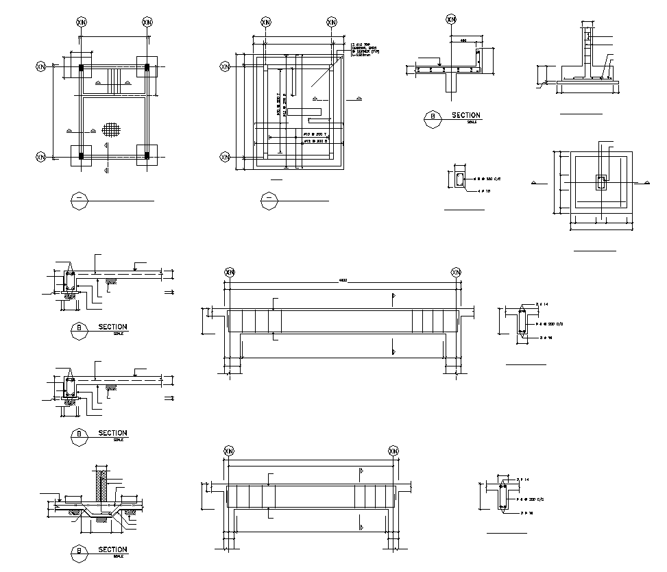
Beam to column connection detail 2d section and plan layout file
Description
Beam to column connection detail 2d section and plan layout file, plan view detail, column structure detail, beam structure detail, hidden line detail, section line detail, numbering detail, reinforcement detail in tension and compression zone, hook and bends detail, effective cover detail, main and distribution bars detail, scetion detail, hatching detail, column spacing detail, bar dimension detail, etc.

Uploaded by:
Eiz
Luna

