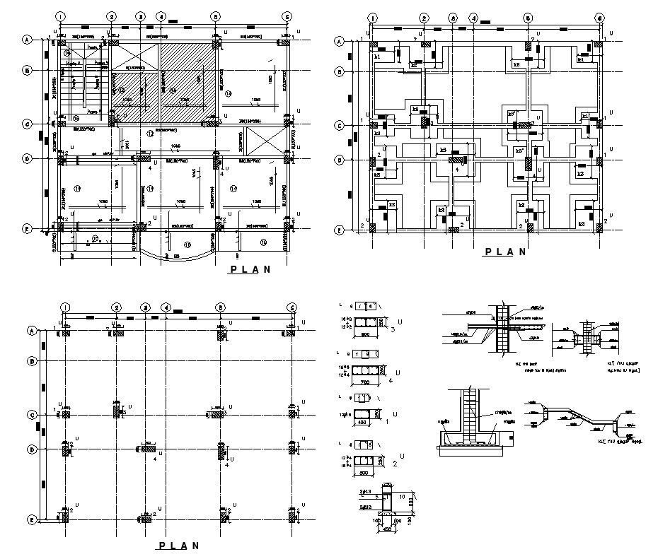
Foundation plan of a building detail CAD structure layout file in dwg format
Description
Foundation plan of a building detail CAD structure layout file in dwg format, reinforced concrete cement (RCC) structure, foundation spacing detail, numberings detail, dimension detail, staircase detail, plan view detail, wall and floorings detail, reinforcement detail in tension and compression zone, effective cover detail, concrete masonry detail, hook and bends detail, main and distribution bars detail, cut out detail, etc.

Uploaded by:
Eiz
Luna

