Electrical unit detail 2d view CAD block layout file in autocad format
Description
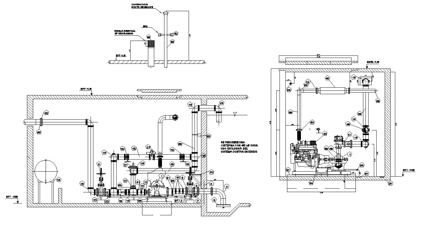
Electrical unit detail 2d view CAD block layout file in autocad format, line drawing, numberings detail, welded and bolted joints and connection detail, pipe system detail, hatching detail, side elevation detail, front elevation detail, valve detail, not to scale drawing, etc.

Uploaded by:
Eiz
Luna

