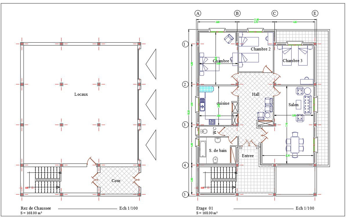
une simple villa en r+1
Description
une simple villa en r+1 avec quatre pièces ,un grand séjour familiale ,une chambre master ,deux chambres a coucher pour enfants et une vaste cuisine ainsi q'une grande salle de bain.
sur une superficie de 168.00 m² ,un local commerciale occupe totalement le rez de chaussée
Uploaded by:
Ahmed
Essaid

