Church office section, roof plan and doors and windows schedule details dwg file
Description
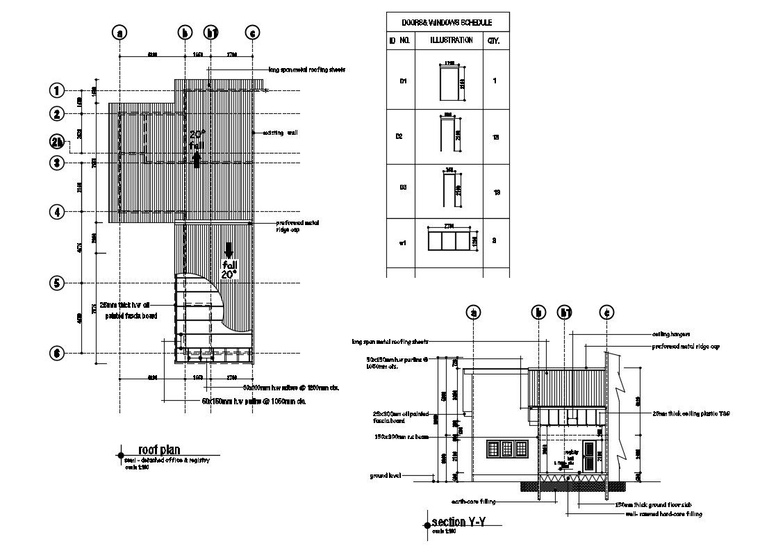
Church office section, roof plan and doors and windows schedule details that includes a detailed view of flooring view, doors and windows view, staircase view, balcony view, wall design, dimensions, roof or terrace view with previously linked support, multilayer insulation panel, rubber shock absorber element, galvanized profile for anchorage, acoustic sandwich. (see detail), dimensions details, memory of materials, concrete details, cuts and joints details, reinforcement details, water proofing details and much more of church office details.
Uploaded by:

