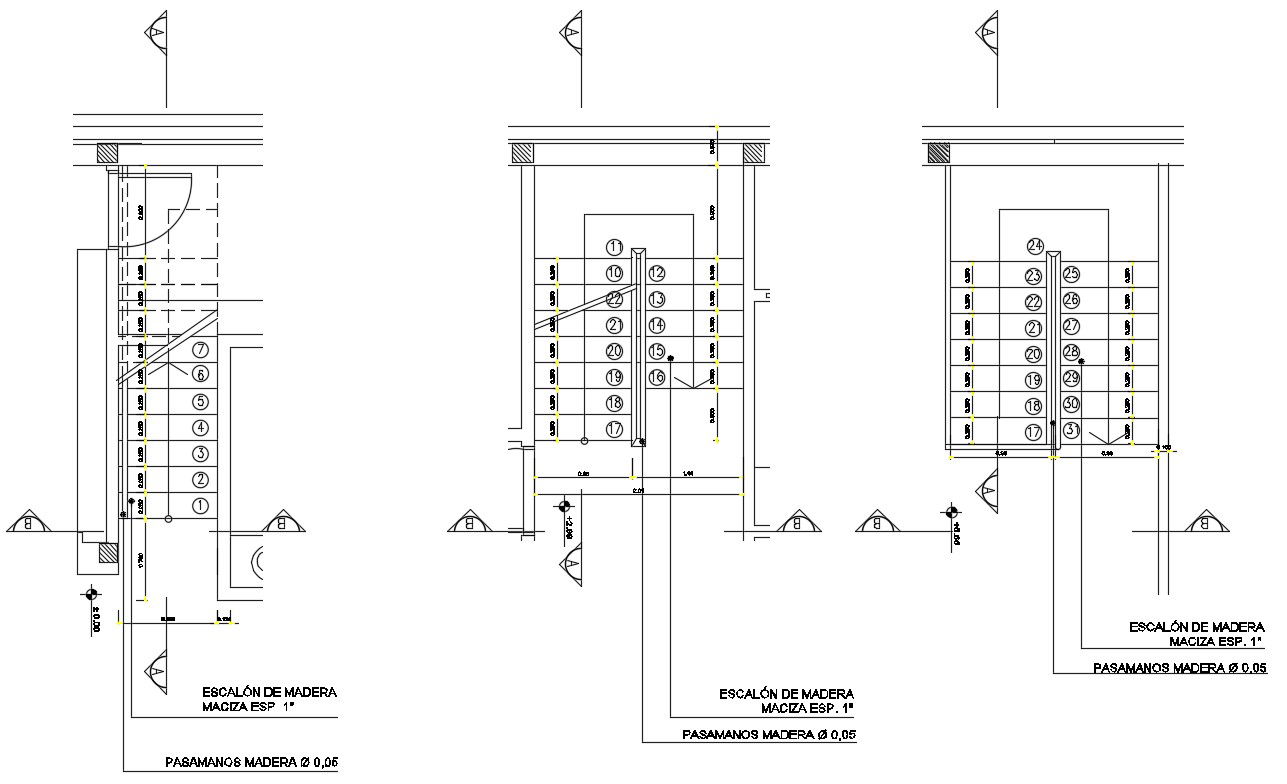
Stairways details of housing floor cad drawing details dwg file
Description
Stairways details of housing floor cad drawing details that includes a detailed view of house front sectional view with main stairways, stairways sectional view of drawing room to floor, terrace stairways, doors and windows view, dimensions view, supportive pillar view and much more of stairways details.
Uploaded by:
