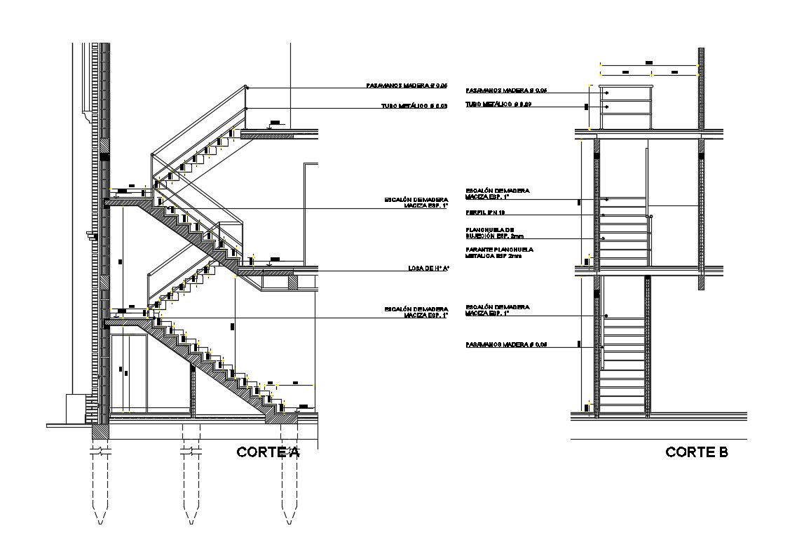
Stairways sectional and drawing details of housing floors dwg file
Description
Stairways sectional and drawing details of housing floors that includes a detailed view of house front sectional view with main stairways, stairways sectional view of drawing room to floor, terrace stairways, doors and windows view, dimensions view, supportive pillar view and much more of stairways details.
Uploaded by:

