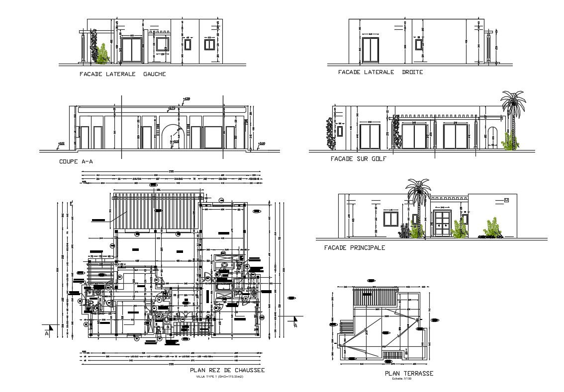
All sided elevation, section and plan details of villa type house dwg file
Description
All sided elevation, section and plan details of villa type house that includes a detailed view of facade back and side elevations and section details with flooring view, doors and windows view, staircase sectional details, balcony view, wall sections and dimensions details, car parking floor, tree view, wall design with main entry gate, mini garden, car parking view, main entry house door, drawing room, living room, family hall, kitchen, dining area, indoor staircases, laundry area, balcony, bedroom, master bedroom, toilets and bathroom, indoor doors, furniture details and much more of house project.
Uploaded by:

