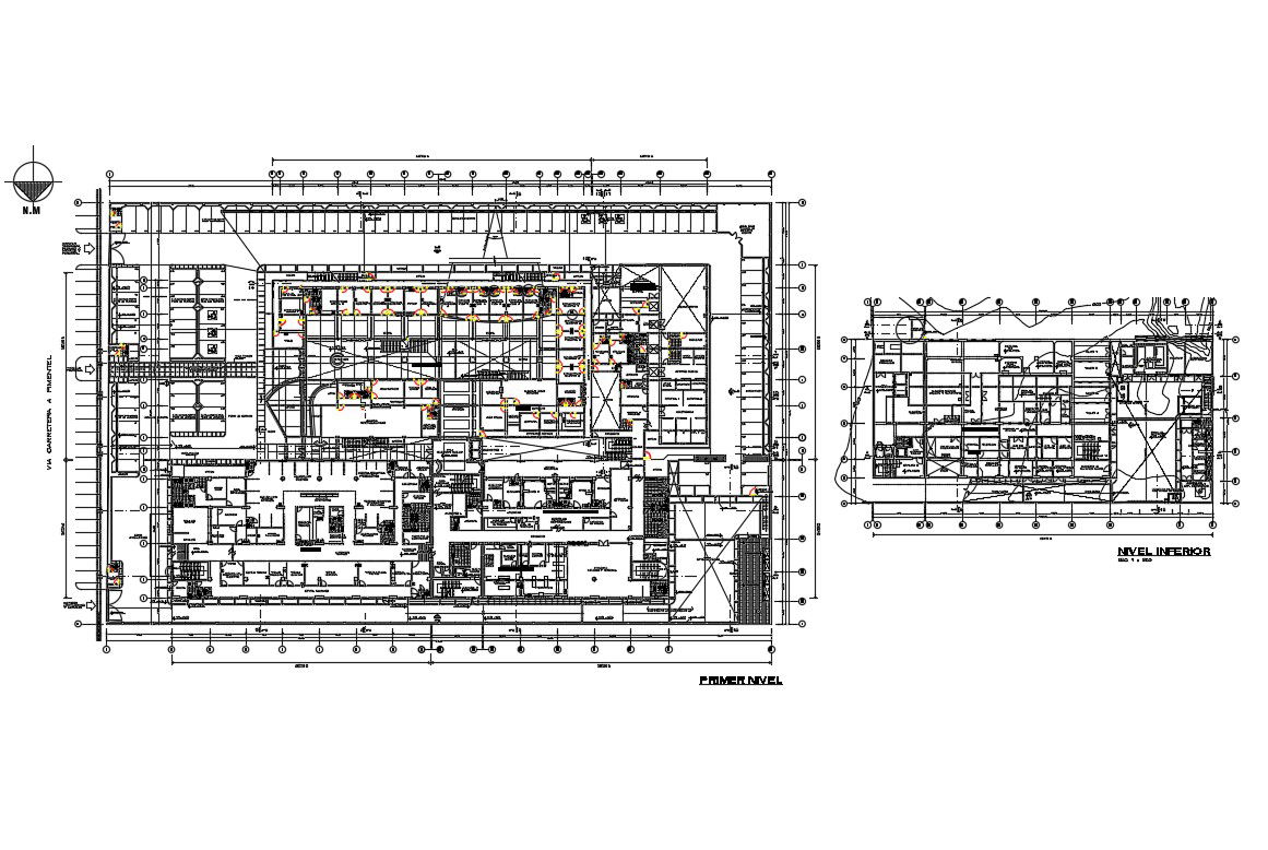
Multi-specialist hospital building floor plan cad drawing details dwg file
Description
Multi-specialist hospital building floor plan cad drawing details that includes a detailed view of specialized departments, operation theater, cleaning departments, pharmacy stores, special and general ward, specimen collection, emergency laboratory, imagenology, laboratories, circumbulatory, waiting rooms, sanitary man, duct, central nursing, sanitary, x-ray, tomography, mastography and desitography, rest area and sanitary, development and printing , interpretation, emergency laboratory, special tests, washing and stirilization, classification and distribution of samples, washing and sterilization, culture media and much more of hospital plan.
Uploaded by:

