Multi-family residential building main elevation and transverse and longitudinal section details dwg file
Description
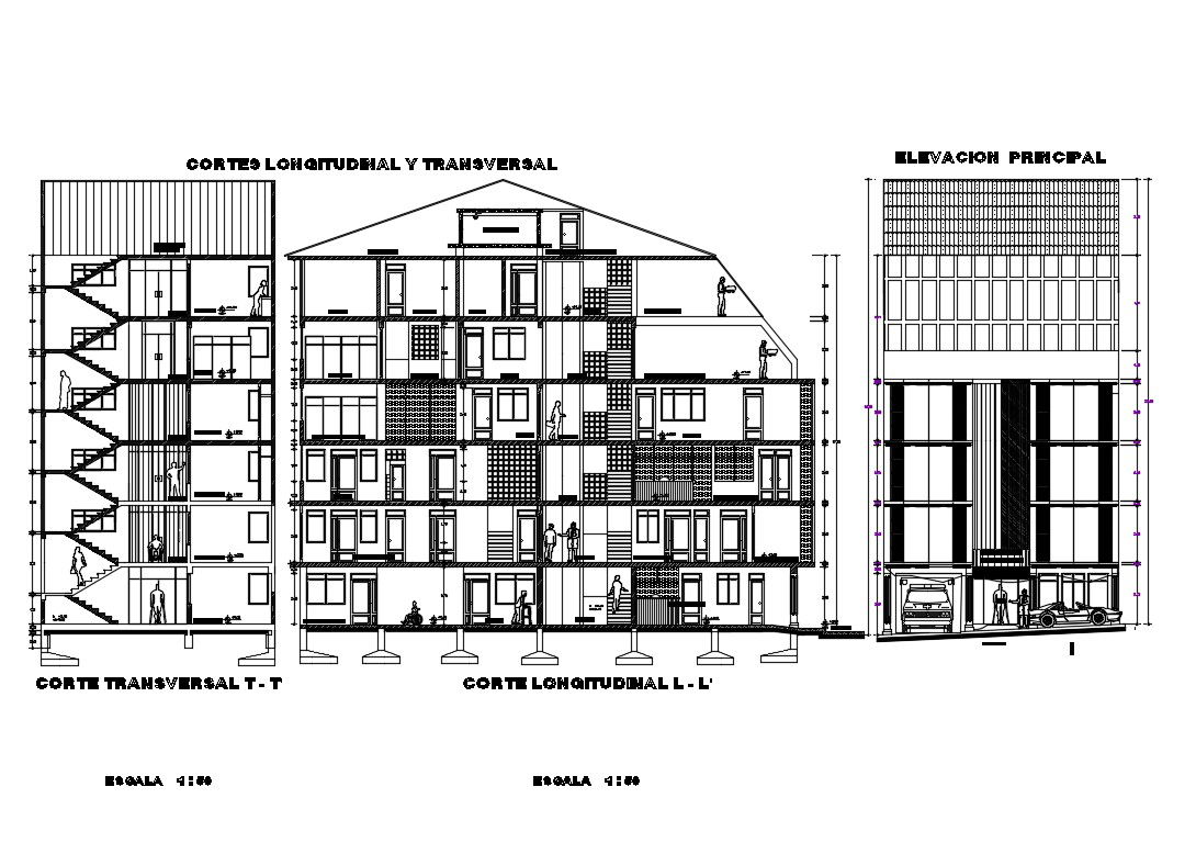
Multi-family residential building main elevation and transverse and longitudinal section details that includes a detailed view of flooring view, doors and windows view, staircase sectional details, balcony view, wall sections and dimensions details, car parking floor, tree view, wall design and much more of apartment building details.
Uploaded by:

