Foundation plan, water tank, doors and windows and auto-cad details of house dwg file
Description
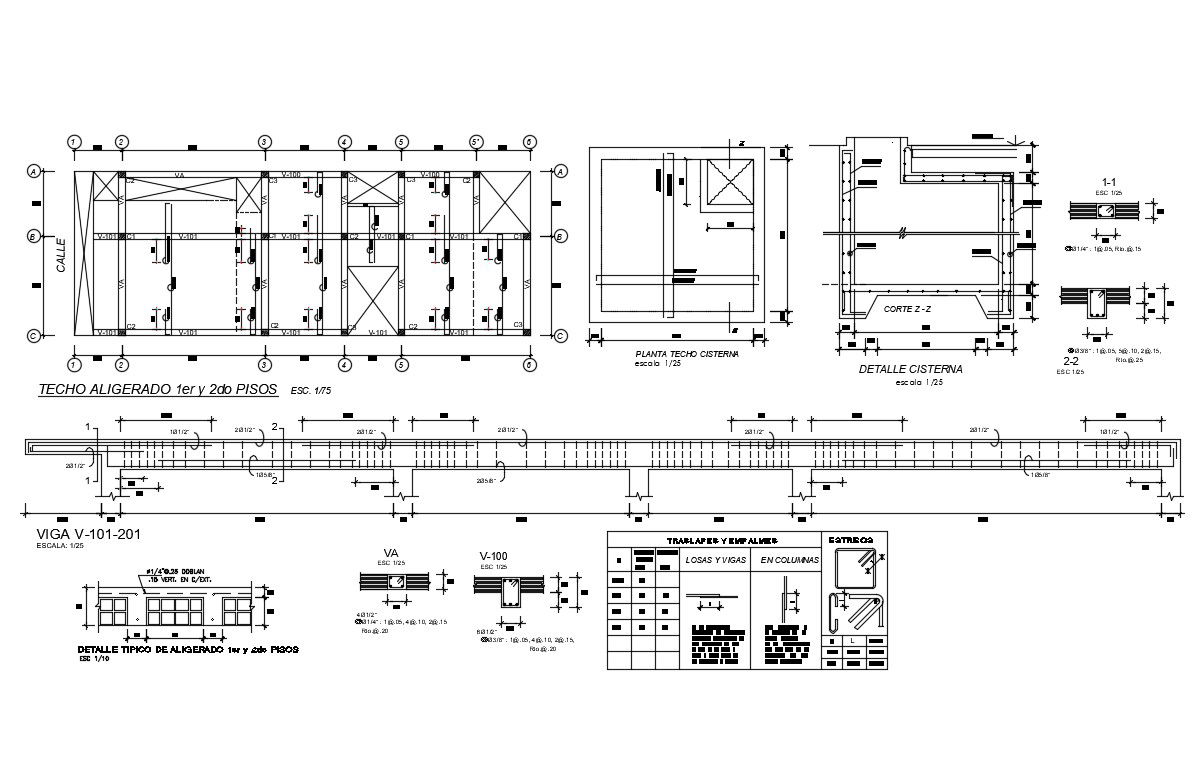
Foundation plan, water tank, doors and windows and auto-cad details of house that includes a detailed view of foundation structure details, doors and windows details, water tank sectional details, beam and column details and much more of structure details.
Uploaded by:

