Multi-family apartment building elevation, section and floor plan details dwg file
Description
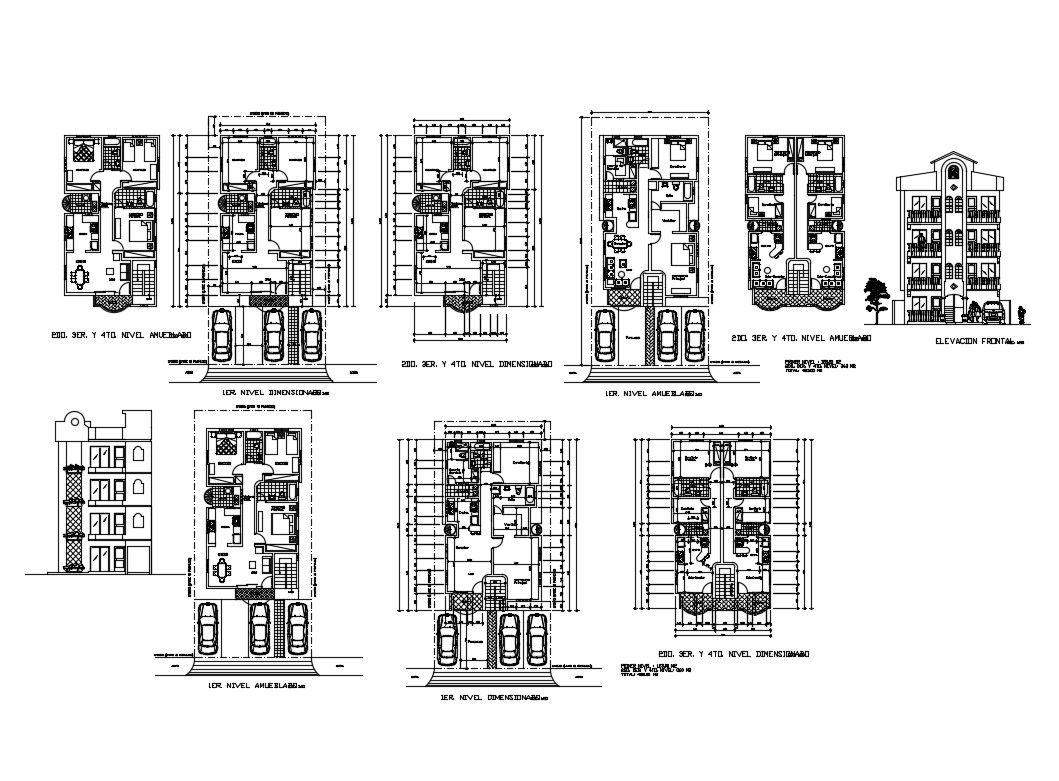
Multi-family apartment building elevation, section and floor plan details that includes a detailed view of flooring view, doors and windows view, staircase view, balcony view, wall design, dimensions, roof or terrace view, car parking view, tree view, main entry house door, drawing room, living room, family hall, kitchen, dining area, indoor staircases, laundry area, balcony, bedroom, master bedroom, toilets and bathroom, indoor doors, furniture details and much more flat project.
Uploaded by:

