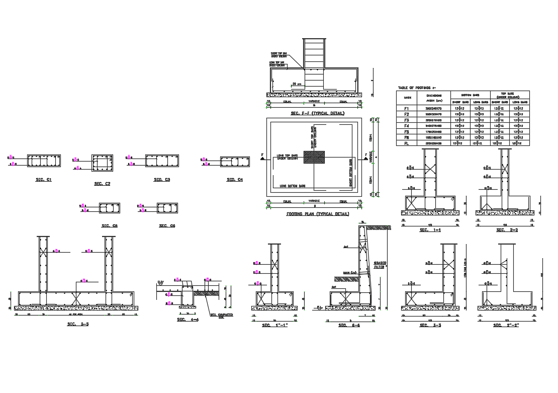
Footing and column structure details of house dwg file
Description
Footing and column structure details of house that includes a detailed view of column sectional details, dimensions details, place and size details, footing plan typical details, table of footings and much more of structure details.
Uploaded by:

