Pump house section and plumbing cad drawing details dwg file
Description
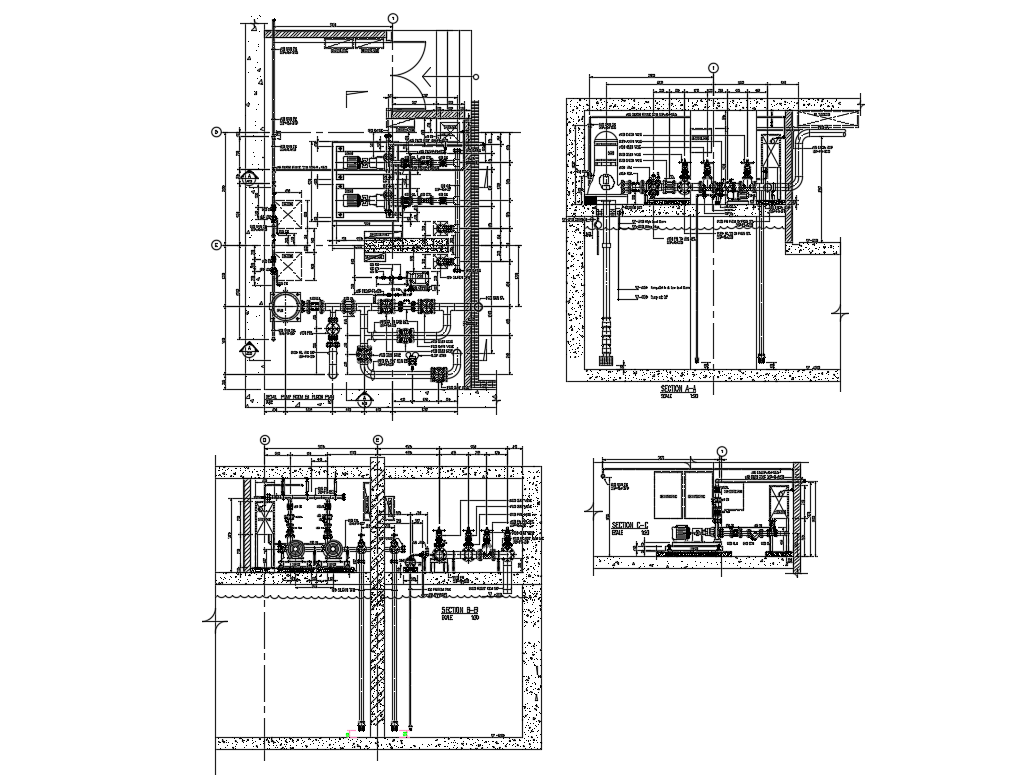
Pump house section and plumbing cad drawing details that includes a detailed view of sectional details, pump installation details, machinery details, dimensions details, electric installation details, wire details and much more of pump house details.
Uploaded by:

